Skip to content

Fast-track problematic vibration solution

F1 Arcade

Boston, USA

F1 gaming experience centre with vibration problems

Back To Case Studies
Project Overview Challenge The Solution The Result Testimonial

The project

F1 Arcade provides a hugely popular and very dynamic social gaming experience with simulators that replicate the thrills of a race through use of an actuated driving seat.

FI Arcade in Boston, USA, is set on the second floor of a tall building; a structure comprising a lightweight concrete slab on top of steel beams with a number of high-end retail units below.

Excessive vibration generated while the 62 F1 driver simulators were in use was being transmitted to adjacent units in the building. With restrictions being imposed on the use of the simulators during peak hours by its landlord, F1 Arcade needed a transformative mitigation solution that would resolve its vibration problem – urgently.

The challenge

The challenge was to bring F1 Arcade’s excessive vibration to within levels deemed acceptable by the building’s owner – without structural intervention, downtime or disruption to F1 Arcade operations. Crucially, the solution had to be tested, proven and commissioned within an exceptionally short timeframe.

Within one week, our UK Technical team flew to the US for an urgent site visit to measure, demonstrate and test the effectiveness of CALMFLOOR active mass damper (AMD) technology.

Close collaboration with F1 Arcade’s vibration consultant and the building owner’s structural engineering team (McNamara Salvia) and their acoustic engineers (Acentech) was critical. All elements of the test phase had to be meticulously monitored and validated. We were also required to work alongside other third-party contractors to ensure the proposed installation of CALMFLOOR AMDs would be concluded seamlessly.

For the test, we placed a single CALMFLOOR unit on the structural slab, but not rigidly connected to the structure itself. In initial tests, reductions of over 50% were achieved over a broad frequency range, illustrated by the 1/3 octave plot (see image 5 above). The more detailed spectrogram plot analysis shows energy at multiple frequencies within this region (see image 5 above).

Our tests demonstrated that CALMFLOOR AMDs would be effective at reducing vibration across this frequency range and, by distributing multiple units to each hotspot and connecting each AMD rigidly to the structure, peak performance would certainly be achieved.

The simulation

A Finite Element (FE) model of a section of the building was created using F1 Arcade’s structural drawings. Key structural members, and some non-structural partitions, were included in the model and capture the floor’s dynamic behaviour (right).

A modal analysis of this model in conjunction with our site measurements was used to identify the best locations for the requisite number of CALMFLOOR units to achieve maximum impact on the structural vibration. The distinction between the dynamic behaviour in different parts of the floor showed how the mode shapes are localised and the likelihood that vibration levels would be exacerbated when the simulators were in use.

This demonstrated that CALMFLOOR AMDs should be spatially distributed to ensure control would be effective and consistent.

The solution

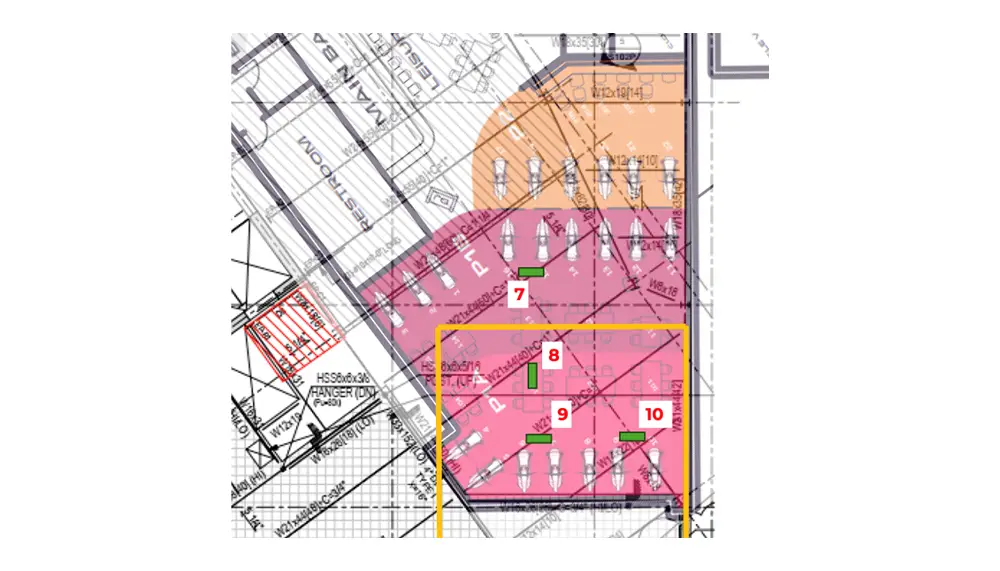
Following our site tests and simulation, we recommended 11 AMDs should be strategically installed at key locations (images 4 and 5 above).

The emphasis was placed on areas where multiple simulators had caused excessive, multiple modes of vibration and which had given neighbouring occupants cause for concern. Since the combined force output of multiple simulators running simultaneously had the potential to exceed CALMFLOOR force capacity, clusters of AMD units were recommended.

The result

Thanks to a rapid response and the calibre of our site testing and simulations, we deployed a solution that reduced our customer’s vibration levels by 76%. This was implemented without any structural intervention or downtime – within just six weeks from date of order.

With a validated data set, F1 Arcade had the evidence and confidence to implement our recommended CALMFLOOR solution. Within hours of installation, our client experienced the high-performance, low-vibration and complaint-free environment we had proved would be achieved.

Having incorporated CALMCONNECT smart portal for real-time monitoring and a CALMCARE comprehensive SLA, F1 Arcade is satisfied that active vibration control is the perfect solution for further locations around the world.

DOWNLOAD THE CASE STUDY PDF

I’m thrilled to share that the F1 Arcade project was a great success. The data collected from the tenant floor both before and after the installation of CALMFLOOR units, showed impressive results – a remarkable 76% reduction in the low-frequency vibrations we targeted. This is a fantastic outcome, and we’re grateful for your role in providing such an effective solution for vibration control.

Omer F. Tigli, Vibrations Group Director, McNamara Salvia

Gym-induced vibration problem

To facilitate the rapid conversion of a suspended office floor to an office gym in a city centre mul ...
Read More

Vibration control in a repurposed building

Following a conversion from office space to a life science laboratory, we set out to evidence the im ...
Read More

Human-induced floor vibration problems

An existing office building was experiencing human-induced floor vibration problems and CALMFLOOR wa ...
Read More

Join Our Mailing List

We use Mailchimp as our marketing platform. By subscribing, you acknowledge that your information will be transferred to Mailchimp for processing. Learn more
You can unsubscribe at any time by clicking the link in the footer of our emails. Privacy Policy